服务流程
一、产品特点
1、带蒸汽或空气保温装置,不受环境温度影响,减少动作频率,延长寿命。
2、备有过滤器和排污。
3、该阀动作灵敏可靠,排水量大。
二、工作原理:
热动力疏水阀是利用热动力学特性, 当凝结水排流较低时会发生第二次蒸发,并在粘度、密封等方面与蒸汽方面存在差异驱动启闭件。
三、主要零件材料:
|
主要零件 |
阀体 |
阀盖 |
阀片 |
阀帽 |
|
材料 |
铸钢 |
铸钢 |
不锈钢 |
不锈钢 |

|
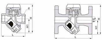
产品型号
|
DN
|
尺寸(mm)
|
||||||||||||
|
螺纹连接
|
承插焊连接
|
法兰连接
|
||||||||||||
|
L
|
H
|
L
|
H
|
d1
|
t
|
L
|
H
|
D
|
D1
|
D2
|
b
|
f
|
||
|
CS19H16C2540
CS69H16C2540
CS49H16C2540
|
15
|
90
|
80
|
75
|
80
|
23
|
7
|
150
|
110
|
95
|
65
|
45
|
14
|
2
|
|
20
|
90
|
90
|
85
|
90
|
28
|
7
|
150
|
110
|
105
|
75
|
55
|
14
|
2
|
|
|
25
|
90
|
115
|
90
|
115
|
33
|
10
|
160
|
115
|
115
|
85
|
65
|
14
|
2
|
|
|
32
|
120
|
138
|
120
|
138
|
42
|
12
|
230
|
138
|
135
|
100
|
78
|
16
|
2
|
|
|
40
|
120
|
148
|
120
|
148
|
52
|
12
|
230
|
148
|
145
|
110
|
85
|
16
|
3
|
|
|
50
|
140
|
163
|
140
|
163
|
62
|
12
|
230
|
163
|
160
|
125
|
100
|
16
|
3
|
|
|
65
|
/
|
/
|
/
|
/
|
/
|
/
|
250
|
185
|
180
|
145
|
120
|
18
|
3
|
|
|
80
|
/
|
/
|
/
|
/
|
/
|
/
|
280
|
285
|
195
|
160
|
135
|
20
|
3
|
|
|
100
|
/
|
/
|
/
|
/
|
/
|
/
|
310
|
315
|
215
|
180
|
155
|
20
|
3
|
|
|
CS19H-16Z
CS49H-16Z |
15
|
90
|
80
|
75
|
80
|
23
|
7
|
150
|
110
|
95
|
95
|
45
|
14
|
2
|
|
20
|
90
|
90
|
85
|
90
|
28
|
7
|
150
|
110
|
105
|
75
|
55
|
14
|
2
|
|
|
25
|
90
|
115
|
90
|
115
|
33
|
10
|
160
|
115
|
115
|
85
|
65
|
14
|
2
|
|
Copyright © 2018杭州中力阀门有限公司版权所有